1、产品介绍:
QZ系列潜水轴流泵、QH系列潜水混流泵是传统的水泵一电动机机组的更新换代产品,由于电机与水泵构成一体,潜入水中运行,具有传统机组一系列无法比拟的优点。
由于电机与水泵构成一体,无需在安装现场进行耗工、耗时复杂的轴线对中装配工序,现场安装十分方便。
由于潜入水中运行,可以大大简化了泵站的土建及建筑结构工程,减少安装面积,节约泵站的工程总造价的30-40%。
泵在水中运行,水流从电机周围通过,噪声低,电机冷却条件好。如有必要可以建设地下泵站,保持地面的环境风貌。
操作方便,运行可靠、维护保养方便。
采用轴(混)流潜水电泵是解决在水位涨落大的沿江、湖泊地区建泵站和防洪问题最彻底的方法,省去了泵间的长轴,提高运行安全可靠性。
该泵广泛适用于工农业输送水、城市给水、轻度污水排放和调水工程。
2、结构特点:
潜水电泵其结构见图,潜水电泵由潜水电机与水力系统两部分组成。潜水电机置于泵的上方为干式结构,F级绝缘,可靠的机械密封,使电机定子绕组与介质隔绝,并且有泄漏及内部绕组温升等保护装置。配备控制柜,运行安全、可靠,对水质和环境适应性广。叶片可调,扬程流量变化范围广,是传统轴泵更新换代产品。从电机上方看,叶轮顺时针方向旋转。
3、部分型号技能参数表:
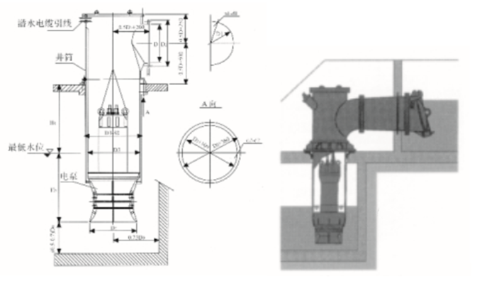
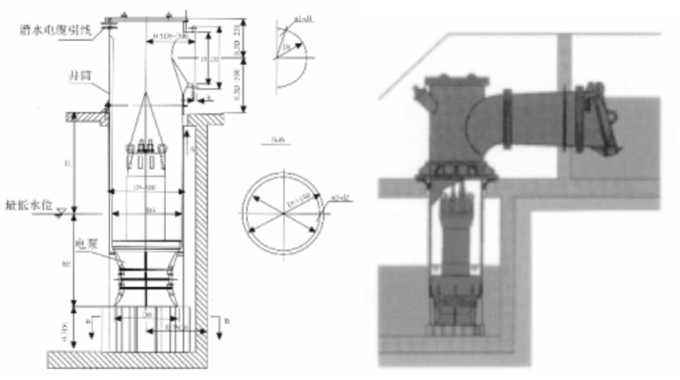
4、安装方式:
1)井筒悬吊式安装:

2)井筒落地式安装:

3)井筒弯管式安装:

4)井筒敞开式安装:
5、潜水轴流泵、混流泵成套供应范围: